2 Bedroom Terraced House To Rent
Malvern Road, Harlington, UB3 5JA
£1,800 pcm

Key Features

  • 2 Bedrooms
  • Terraced House Extended
  • Convenient Popular Location
  • Private Rear Garden
  • Off Street Parking
  • Gas Central Heating / Double Glazing
  • EPC Rating D

Summary

EXTENDED 2 BEDROOM HOUSE / GREAT LOCATION: A 2 bedroom terraced house situated in a sought after location near the Bath Road giving easy access to London Heathrow Airport and the M4/M25 motorway networks with Hayes Town shopping centre and station within 2.5 miles.

This property features large kitchen, 2 double bedrooms and family bathroom.
Other benefits include gas central heating, double glazing and off street parking plus a well kept rear garden mainly laid to lawn.

* Minimum Tenancy 6 Months
* Deposit £1,800
* Council Tax Band D

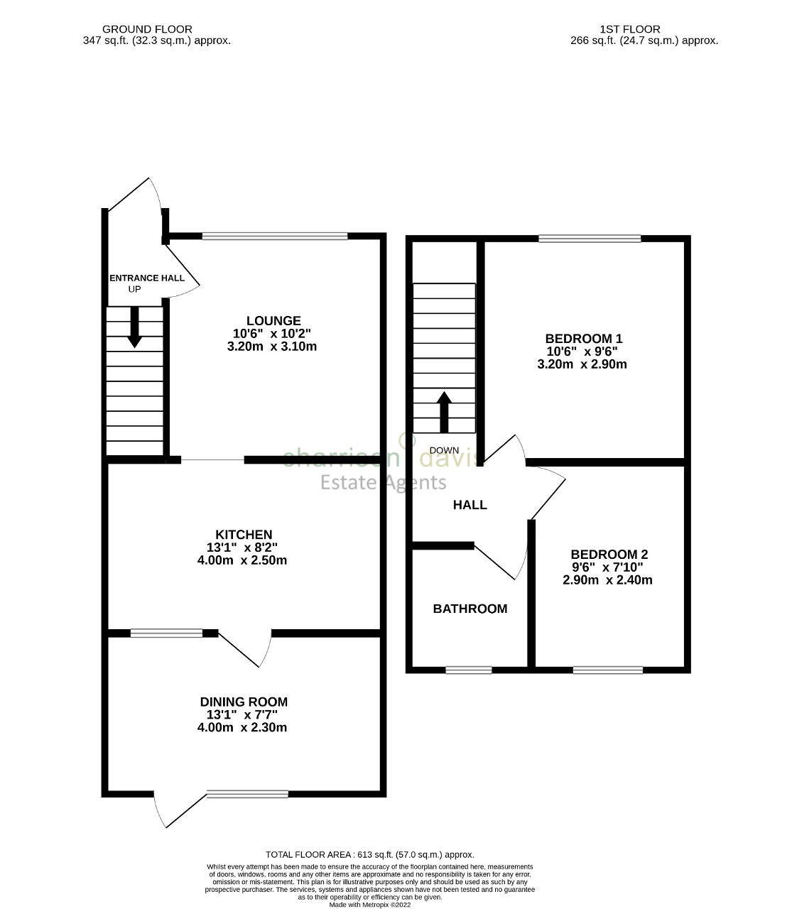
Ground Floor

Lounge

10' 5'' x 10' 2'' (3.2m x 3.1m) Laminate flooring, radiator and double glazed window.

Kitchen

8' 2'' x 13' 1'' (2.5m x 4m) Tiled flooring. Fitted wall and base units with worktops to include a single drainer sink unit, cooker point, gas hob, extractor fan hood, electric oven, fridge/freezer, washing machine and part tiled walls and splashbacks. Double glazed window to the rear and side aspect door leading to the extension.

Dining room

7' 6'' x 11' 5'' (2.3m x 3.5m) Laminate flooring, double glazed window and door leading to rear garden.

First Floor

Bedroom 1

9' 6'' x 10' 5'' (2.9m x 3.2m) Fitted carpet, radiator and front aspect double glazed window.

Bedroom 2

9' 6'' x 7' 10'' (2.9m x 2.4m) Fitted carpet, radiator and rear aspect double glazed window.

Bathroom

Tiled flooring and radiator. Three-piece bathroom suite to include a panel enclosed bath, pedestal hand basin, low level W.C. and part tiled walls and splashbacks. Frosted double glazed window

Exterior

Outside rear

Patio area and laid to lawn

Outside front

Off street parking.

About Harlington

Harlington is a district of the London Borough of Hillingdon, on the northern perimeter of London Heathrow Airport. The district adjoins Hayes to the north and shares a railway station with the larger district, which is its post town.

The village is surrounded by Green Belt land and open fields and also contains a parade of shops to include a Pharmacy, Co-operative Convenience store, Newsagents, a variety of restaurants and fast food outlets and a Post Office. There are also four public houses: The Great Western, The Pheasant, The Wheatsheaf, and The White Hart. The village also boasts two churches, a Baptist church and a Church of England church, St Peter & St Paul's and William Byrd School. The village High Street is also home to the Harlington Locomotive Society and West London Models.

The earliest surviving mention of Harlington appears to be in a 9th-century charter in which land at Botwell in Hayes was said to be bounded on the west by "Hygeredington" and "Lullinges" tree. The first of these must be Harlington; the second has not been identified. The boundary between Hayes and Harlington, which may have been defined by the date of this charter, was later marked by North Hyde Road and Dawley Road.

Request a Viewing

Additional Information

EPC Graph

For further information on this property please call 020 8897 1688 or e-mail info@charrisondavis.co.uk

Share this property

Administration Fees

Interested in this property?

Enquire/request a viewing

Share this property

Ombudsman TSI DPS Zoopla Onthemarket